0
Passa al contenuto
SIGMA Studio
Home
Chi Siamo
Geotecnica e Sostenibilità Ambientale
Strategia ESG
Lavori
Contatti
SIGMA Studio
Home
Chi Siamo
Geotecnica e Sostenibilità Ambientale
Strategia ESG
Lavori
Contatti
Home
Chi Siamo
Geotecnica e Sostenibilità Ambientale
Strategia ESG
Lavori
Contatti
  • MAXXI - Indagini e relazioni geologico-tecniche per il progetto preliminare e definitivo

    Centro d’arte contemporanea (MAXXI) di Roma

    Indagini e relazioni geologico-tecniche per il progetto preliminare e definitivo

    2000-2002

  • Deleh Descent Road, Arabia Saudita - Studio Indagini Geotecniche - Studio SIGMA

    Deleh Descent Road, Arabia Saudita

    Studio per la sistemazione dei versanti

    2006

  • Jebel Afeet Road, Al Ain, E.A.U. - Studio Indagini Geotecniche - SIGMA Studio

    Jebel Afeet Road, Al Ain, E.A.U.

    Studio per la sistemazione delle trincee e dei rilevati affetti da instabilità

    2008

  • Reshen-Kalimash Motorway, Albania - Studio Indagini Geotecniche - SIGMA Studio - Progettazione esecutiva ed assistenza durante la costruzione

    Reshen-Kalimash Motorway, Albania

    Progettazione esecutiva ed assistenza durante la costruzione

    2008-2009

  • Global Hawk Maintenance and Operational Complex, Sigonella NAS II (CT) - Studio Indagini Geotecniche - SIGMA Studio - Indagini geotecniche e sismiche, Geotechnical report

    Global Hawk Maintenance and Operational Complex, Sigonella NAS II (CT)

    Indagini geotecniche e sismiche, Geotechnical report

    2009

  • Palazzetto dello Sport de L’Aquila - Studio Indagini Geotecniche - SIGMA Studio - Indagini geognostiche e relazione geologico-tecnica

    Palazzetto dello Sport de L’Aquila

    Indagini geognostiche e relazione geologico-tecnica

    2010-2011

  • New Dormitory, Aviano Air Base (PN) - Studio Indagini Geotecniche Srl - SIGMA Studio - Indagini geotecniche e sismiche, Geotechnical report

    New Dormitory, Aviano Air Base (PN)

    Indagini geotecniche e sismiche, Geotechnical report

    2011

  • Accademia Tedesca in Roma (Villa Massimo) - Studio Indagini Geotecniche - SIGMA Studio - Indagini idrogeologiche per il progetto di un sistema geotermico di riscaldamento raffrescamento a bassa entalpia

    Accademia Tedesca in Roma (Villa Massimo)

    Indagini idrogeologiche per il progetto di un sistema geotermico di riscaldamento/raffrescamento a bassa entalpia

    2013-2014

  • Linea ferroviaria Oued Tlelat Tlemcen, Algeria - Studio Indagini Geotecniche - SIGMA Studio - Studio per la sistemazione del versante

    Linea ferroviaria Oued Tlelat-Tlemcen, Algeria

    Studio per la sistemazione del versante al Km 9+500

    2014-2015

  • Discarica RSU a fossa di Giovinazzo (BA) - Studio Indagini Geotecniche - SIGMA Studio - Progetto esecutivo della discarica

    Discarica RSU a fossa di Giovinazzo (BA)

    Progetto esecutivo della discarica e sistemazione delle aree limitrofe

    2014-2016

  • Progetto P227 Armory, Camp Lemonnier, Gibuti - Studio Indagini Geotecniche - SIGMA Studio -

    Progetto P227 Armory, Camp Lemonnier, Gibuti

    Geotechnical Report

    2015

  • SATCOM Relay Pads and Facilities, Sigonella NAS II (CT) - Studio Indagini Geotecniche - SIGMA Studio - Progettazione integrata dei criteri LEED V4 BD+C

    SATCOM Relay Pads and Facilities, Sigonella NAS II (CT)

    Progettazione integrata dei criteri LEED V4 BD+C

    2017-2018

  • Progetto P130 Communication Center, Sigonella NAS II (CT) - Studio Indagini Geotecniche - SIGMA Studio -Indagini geotecniche e geofisiche, Geotechnical Report

    Progetto P130 Communication Center, Sigonella NAS II (CT)

    Indagini geotecniche e geofisiche, Geotechnical Report

    2019

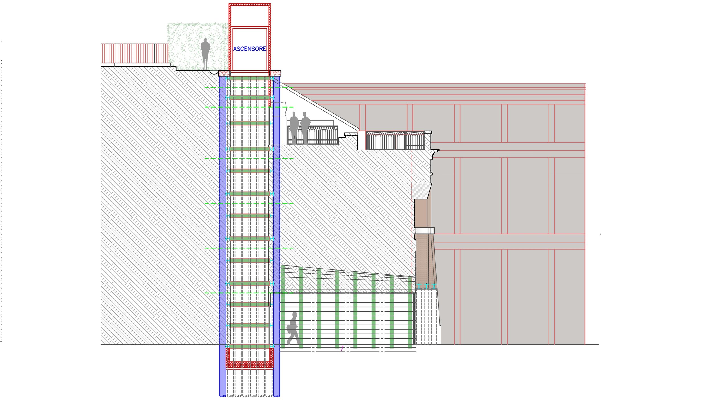
  • Palazzo del Quirinale, Roma - Studio Indagini Geotecniche - SIGMA Studio - Studio per la realizzazione di un ascensore

    Palazzo del Quirinale, Roma

    Studio per la realizzazione di un ascensore a servizio dei giardini

    2020

  • Progetto P111 Ammunition Magazines, Sigonella NAS II (CT) - Studio Indagini Geotecniche - SIGMA Studio - Indagini geotecniche e sismiche, Geotechnical Report

    Progetto P111 Ammunition Magazines, Sigonella NAS II (CT)

    Indagini geotecniche e sismiche, Geotechnical Report

    2021

  • Scuola Specialisti dell'Aeronautica Militare, Caserta - Studio Indagini Geotecniche - SIGMA Studio - Progettazione integrata dei criteri LEED V4 BD+C

    Realizzazione fabbricati A, B, C, APMF, impianti sportivi e sistemazioni esterne presso la Scuola Specialisti dell'Aeronautica Militare, Caserta

    Progettazione integrata dei criteri LEED V4 BD+C

    2021-2023

  • Milestone Student Living Accomodation, Roma - Studio Indagini Geotecniche - SIGMA Studio - Progettazione integrata dei criteri LEED V4 BD+C - Ostiense

    Milestone Student Living Accomodation, Roma

    Progettazione integrata dei criteri LEED V4 BD+C per realizzazione nuovo studentato nel quartiere Ostiense

    2023

  • Alloggi di Servizio Collettivi presso l'Aeroporto di Centocelle, Roma - Studio Indagini Geotecniche - SIGMA Studio - LEED V4 BD+C

    Realizzazione di Tre Palazzine ad uso Alloggi di Servizio Collettivi presso l'Aeroporto di Centocelle, Roma

    Verifica e pianificazione delle misure atte a soddisfare i requisiti del protocollo LEED V4 BD+C

    2024-2025

  • Manutenzione macchinari ferroviari - Plasser Italiana SpA - Latina scalo - Studio Indagini Geotecniche - SIGMA Studio - ndagini geognostiche - relazioni geologico-tecniche

    Nuovo stabilimento per la manutenzione dei macchinari ferroviari della Plasser Italiana SpA, Latina scalo

    Indagini geognostiche, relazioni geologico-tecniche e consulenza in fase di costruzione

    2019-2025

  • MAXXI Hub a via Masaccio, Roma - Studio Indagini Geotecniche - SIGMA Studio - Relazione geologica - geotermico a bassa entalpia

    MAXXI Hub a via Masaccio, Roma

    Relazione geologico-tecnica per il progetto e studio per la realizzazione di un impianto geotermico a bassa entalpia

    2024-2026

  • Nuova Tranvia Palmiro Togliatti, Roma - Studio Indagini Geotecniche - SIGMA Studio -Analisi di Risposta Sismica Locale 2D - RSL 2D

    Nuova Tranvia Palmiro Togliatti, Roma

    Analisi di Risposta Sismica Locale in 2D su 2 profili trasversali per la progettazione delle opere connesse al sovrappasso di via Collatina e della linea ferroviaria Roma-Pascara

    2025

Contatti
SIGMA Studio Geotecnica Management Ambientale

Studio Indagini Geotecniche Srl

Via Ravenna 8 00161 Roma

Cod. fisc. 01268530589

P.IVA : 00980031009

Contattaci